內螺紋截止閥
產品結構
主要零件材料
| ?材料名稱 | J11H-(16-64)C | J11W-(16-64)P | J11W-(16-64)R |
| ?閥體 | WCB | ZG1Cr18Ni9Ti??CF8 | ZG1Cr18Ni12Mo2Ti?CF8M |
| 閥蓋 | WCB | ZG1Cr18Ni9Ti??CF8 | ZG1Cr18Ni12Mo2Ti?CF8M |
| ?閥掰 | ZG1Cr18Ni9Ti?CF8 | ZG1Cd8Ni9T?i CF8 | ZG1Cr18Ni12Mo2Ti?CF8M |
| 閥桿 | ICr18Ni9Ti?304 | ICr18Ni9Ti?304 | 1Cr18Ni12Mo2Ti?316 |
| 密封圈 | 304,?316 | ||
| 填料 | ?聚四氟乙烯 | ||
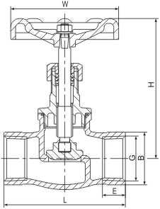
主要外形尺寸
|
DN |
G |
L |
E |
B |
H |
W |
|
8 |
1/4″ |
65 |
15 |
23 |
80 |
70 |
|
10 |
3/8″ |
65 |
15 |
26 |
80 |
70 |
|
15 |
1/2″ |
65 |
16 |
31 |
88 |
70 |
|
20 |
3/4″ |
75 |
18 |
38 |
95 |
70 |
|
25 |
1″ |
90 |
20 |
46 |
110 |
80 |
|
32 |
1?1/4″ |
105 |
21.5 |
56 |
123 |
100 |
|
40 |
2 1/2″ |
120 |
23 |
63 |
135 |
100 |
|
50 |
2″ |
140 |
24.5 |
76 |
150 |
100 |
|
65 |
2?1/2″ |
152 |
27 |
89 |
190 |
120 |
|
80 |
3″ |
175 |
30 |
104 |
210 |
140 |







